Designing Services
At Meera Enviro Lab & Consultancy Pvt. Ltd, we combine technical expertise with a client-centric approach to deliver solutions that make a difference. Whether it’s safeguarding environmental resources or ensuring the quality of construction materials, we are your trusted partner.
An overview of the services you offer and how they will benefit the visitor.
Our Key Services
1. Architectural & Structural Design of Residential & Commercial Building
For both residential and commercial buildings, we are proud to offer professional architectural and structural design services. We prioritize client safety, overall functionality, and visually appealing design and keep in line with all standards and codes.
- Complies with Vastu Shastra
- Earthquake Resistant
- Cost effective and Efficient Design

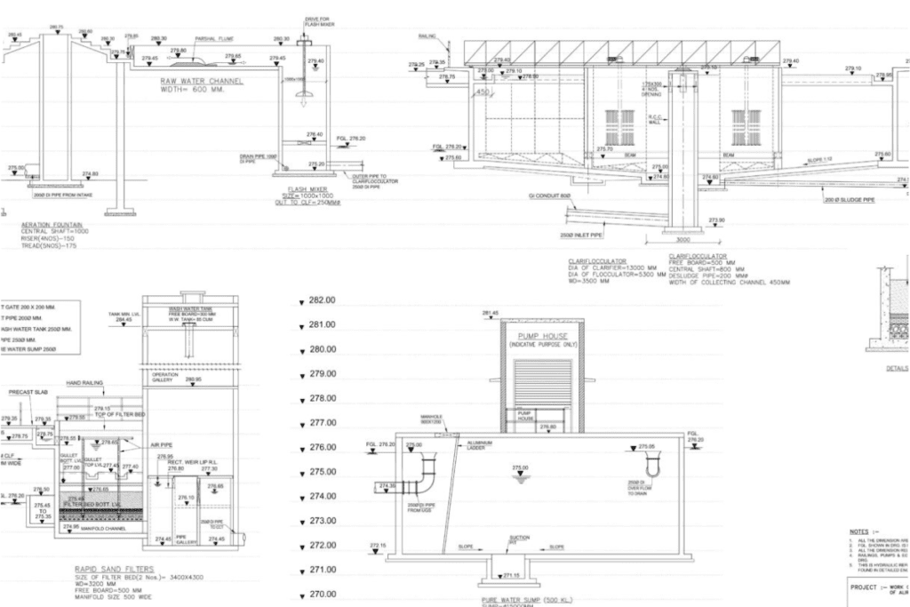
2. Hydraulic Design Of Water Treatment Plant
For water treatment facilities, we focus on hydraulic design and offer tailor-made flow and water purification systems to suit client needs.
- Complete treatment flow and pressure design
- Efficient hydraulic design
- Optimized layout for seamless operations

3. Structural Design Of Water Treatment Plant
For water treatment facilities, we prioritize safe and reliable structural designs that guarantee longevity and provide seamless performance without worry, for any given conditions.
- RCC & Steel structural designs.
Load standards and regulation analysis

4. Hydraulic Design Of Sewage Treatment Plant
The flow, treatment, and discharge of wastewater are key components of Sewage Treatment facilities and we provide reliable, efficient hydraulic design services to treat water rapidly.
- Flow distribution modeling to suit requirements.
- Efficient design of treatment units.
Hydraulic design ensures perfect balance

5. Structural Design Of Sewage Treatment Plant
Our structural designs for Sewage Treatment facilities ensure stability while withstanding the chemicals and elements in the environment.
- Corrosion-resistant planning
- Considering IS codes when designing
- Long-lasting and dependable construction

6. Design Of All Type Of Water Tanks
We consider safety, capacity, and structural stability while designing water tanks (ESR, GSR, and subsurface tanks).
- Creating steel and RCC tanks
- Conducting load and capacity analyses
- Long-lasting, leak-proof structures

7. Hydraulic Design For-
We offer the hydraulic design of rising mains to enable the best pumping efficiency and water transport with the least amount of head loss.
- Clear Water Rising Main Network
- Distribution Pipeline Network
- Sewerage Network System
- Determining the pipe size and pumping requirements
- Evaluating the pressure
- Designing with energy conservation in mind

8. Landscape Planning & Design
For residential, commercial, and industrial areas, we provide innovative landscape design services that blend sustainability, usability, and aesthetics.
- Hardscape and softscape design
- Green and environmental planning
- Lighting, layout design, and walkways

9. Design of Industrial Building & Other Industrial Structures
We create industrial buildings and structures that adhere to industry standards, heavy-load requirements, and operational efficiency.
- Structural safety and load calculations
- Pre-engineered and RCC industrial design
- Functional and effective layout planning

